W型軸聯式旋渦泵結構圖及安裝尺寸圖
時間:2014/7/28 來源:浙江揚子江泵業有限公司
W型旋渦泵是單級懸臂式旋渦泵,泵的進、出口方向為垂直向上。旋渦式葉輪可在軸上沿軸向自由移動,以保證葉輪與泵體、泵蓋之間的軸間間隙兩側相等,允許用紙墊調整間隙。泵的軸封形式分填料和單端面機械密封兩種,泵和電動機合裝在共同底座上。 W型旋渦泵用于輸送溫度-20℃~+80℃粘度不大于5E,無腐蝕性、無固體顆粒的液體。該泵具有體積小,重量輕,外觀大方,W型旋渦泵便于維修的特點,適用于化工、石油、輕紡、電力和其它廠礦的工業生產用水,鍋爐給水,暖氣送水,高樓、消防、除熱循環送水,制造冷凍防暑降溫飲料及食堂、飲食業食具消毒的高壓送水等廣泛用途。該泵大流量為14.4m3/h,小流量為0.7m3/h;大揚程為105m,小揚程為20m;配套功率:大為11kW,小為0.75kW;轉速均為2900r/min。

W型旋渦泵產品特點:
1、W型旋渦泵用于輸送溫度從-20℃~+80℃,粘度不大于5。E,無腐蝕性和具有腐蝕性的無固體顆粒的液體。
揚程范圍:從15米至132米
流量范圍:從0.36米3/時至16.9米3/時
2、W型旋渦泵共有十種型號:具體為20W-20,25W-25,32W-30,40W-10,50W-45,50W-45,65W-50,20W-65,25W-70,32W-72,40W-90。皆為單級懸臂式旋渦泵
3、W型旋渦泵過流部件的材料為HT20-40,鋁鑄鐵和1Cr18Ni9Ti或Cr18Ni12M02Ti四種。(分別用材料代號H、J、B和M表示)
4、W型旋渦泵的密封形式有軟填料密封和單端面機械密封。除WB和WM型泵用單端面機械密封外泵出廠時一律裝軟填料密封。如用戶需要其它型式的軸封要在訂貨時說明。
5、W型旋渦泵的旋轉方向:由泵往電機方向看為逆時針方向旋轉
W型旋渦泵結構說明:
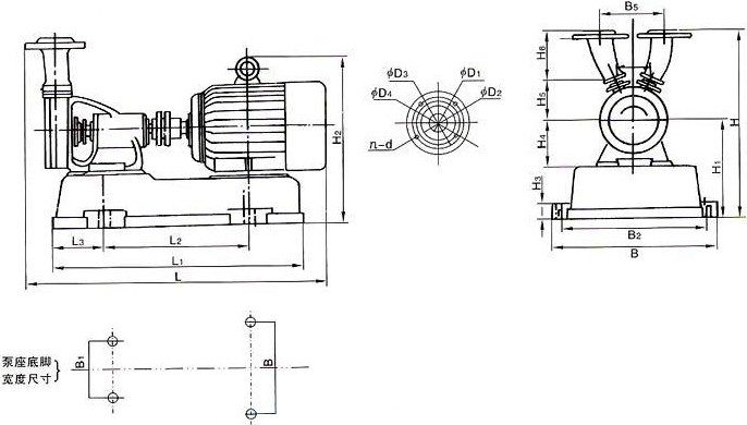
W型旋渦泵的主要零件(風型結構)有1、泵體2、泵蓋3、葉輪4、托架結合部5、爪型彈性聯軸器6、填料壓蓋或者甲.端面密封端蓋7、單端面密封部件(對于wM泵)。w型旋渦泵與電機合裝存-底座上。泵的進、出口方向為斜朝上,經接彎變為垂直向上。
葉輪在軸上是可以自由軸向移動的,以保證葉輪與泵體、泵蓋之間的軸向間隙兩側相等。允許用紙墊來調整間隙.但紙墊必須放存泵蓋出口處的石棉板墊的外面。
|
|
序號 |
名 稱 |
|
1 |
泵 體 |
|
|
2 |
泵 蓋 |
|
|
3 |
葉 輪 |
|
|
4 |
托架結合部 |
|
|
5 |
爪型彈掛連軸器部件 |
|
|
6 |
填料壓蓋或單端面密封端蓋 |
|
|
7 |
單端面密封部件 |
W型旋渦泵安裝尺寸圖:

|
泵型號與電機型號 |
外型及安裝尺寸 |
|||||||||||||||||||||||||
|
L |
L1 |
L2 |
L3 |
L4 |
L5 |
B |
B1 |
B2 |
B3 |
B4 |
B5 |
H |
H1 |
H2 |
H3 |
H4 |
H5 |
H6 |
H7 |
D1 |
D2 |
D3 |
D4 |
4-d |
n-d |
|
|
32W-30 |
636.5 |
545 |
325 |
110 |
102.5 |
60 |
320 |
290 |
200 |
230 |
67 |
127 |
317 |
128 |
210 |
20 |
58 |
89 |
100 |
16 |
32 |
70 |
90 |
120 |
4-ø18 |
4-ø14 |
|
J02-21-2 |
636.5 |
545 |
325 |
110 |
102.5 |
60 |
320 |
290 |
200 |
230 |
67 |
127 |
317 |
128 |
210 |
20 |
58 |
89 |
100 |
16 |
32 |
70 |
90 |
120 |
4-ø18 |
4-ø14 |
|
Y90L-2 |
636 |
530 |
307 |
110 |
102.5 |
60 |
290 |
260 |
200 |
230 |
67 |
127 |
317 |
128 |
210 |
20 |
58 |
89 |
100 |
16 |
32 |
70 |
90 |
120 |
4-ø18 |
4-ø14 |
|
32W-75 |
716 |
585 |
350 |
110 |
102.5 |
60 |
360 |
330 |
260 |
230 |
62 |
132 |
350 |
155 |
313 |
20 |
85 |
90 |
105 |
16 |
32 |
70 |
90 |
120 |
4-ø18 |
4-ø14 |
|
J02-32-2 |
716 |
585 |
350 |
110 |
102.5 |
60 |
360 |
330 |
260 |
230 |
62 |
132 |
350 |
155 |
313 |
20 |
85 |
90 |
105 |
16 |
32 |
70 |
90 |
120 |
4-ø18 |
4-ø14 |
|
Y112M-2 |
711 |
585 |
350 |
110 |
102.5 |
60 |
360 |
330 |
260 |
230 |
62 |
132 |
350 |
155 |
313 |
20 |
85 |
90 |
105 |
16 |
32 |
70 |
90 |
120 |
4-ø18 |
4-ø14 |
|
10W-40 |
723.5 |
585 |
350 |
110 |
104.5 |
65 |
360 |
330 |
260 |
230 |
69 |
139 |
353 |
155 |
313 |
20 |
85 |
88 |
110 |
16 |
40 |
80 |
100 |
130 |
4-ø18 |
4-ø14 |
|
J02-32-2 |
723.5 |
585 |
350 |
110 |
104.5 |
65 |
360 |
330 |
260 |
230 |
69 |
139 |
353 |
155 |
313 |
20 |
85 |
88 |
110 |
16 |
40 |
80 |
100 |
130 |
4-ø18 |
4-ø14 |
|
Y112M-2 |
708.5 |
585 |
350 |
110 |
104.5 |
65 |
360 |
330 |
260 |
230 |
69 |
139 |
353 |
155 |
313 |
20 |
85 |
88 |
110 |
16 |
40 |
80 |
100 |
130 |
4-ø18 |
4-ø14 |
|
50W-45 |
813 |
813 |
685 |
120 |
114 |
70 |
390 |
360 |
260 |
230 |
80 |
160 |
412 |
200 |
383 |
20 |
100 |
92 |
120 |
16 |
50 |
90 |
100 |
140 |
4-ø18 |
4-ø14 |
|
J02-41-2 |
813 |
813 |
685 |
120 |
114 |
70 |
390 |
360 |
260 |
230 |
80 |
160 |
412 |
200 |
383 |
20 |
100 |
92 |
120 |
16 |
50 |
90 |
100 |
140 |
4-ø18 |
4-ø14 |
|
Y132-2S |
818 |
818 |
685 |
120 |
114 |
70 |
390 |
360 |
260 |
230 |
80 |
160 |
412 |
200 |
383 |
20 |
100 |
92 |
120 |
16 |
50 |
90 |
100 |
140 |
4-ø18 |
4-ø14 |
|
65W-50 |
909 |
909 |
705 |
120 |
120 |
80 |
440 |
400 |
285 |
245 |
87 |
177 |
451 |
220 |
430 |
20 |
100 |
101 |
130 |
16 |
65 |
110 |
130 |
160 |
4-ø18 |
4-ø14 |
|
J02-51-2 |
909 |
909 |
705 |
120 |
120 |
80 |
440 |
400 |
285 |
245 |
87 |
177 |
451 |
220 |
430 |
20 |
100 |
101 |
130 |
16 |
65 |
110 |
130 |
160 |
4-ø18 |
4-ø14 |
|
Y160M1-2 |
956 |
956 |
772 |
120 |
120 |
80 |
440 |
400 |
285 |
245 |
87 |
177 |
451 |
220 |
445 |
20 |
100 |
101 |
130 |
16 |
65 |
110 |
130 |
160 |
4-ø18 |
4-ø14 |
W型旋渦泵安裝與拆卸:
1.安裝
①安裝時不應讓泵承受進出口管路的重量。吸入管路應盡量短而直。
②安裝后應撿查泵軸與電機軸的同心度及歪斜。同心度的檢查方法,可用直尺檢查相互連接的兩個連軸器外圓,其同心度不得超過0.1毫米;歪斜檢查,可用卡尺檢其兩連軸器端面之間沿圓周的間隙差,在整個圓周上不得超過0.3毫米。
2.拆卸與接配順序:
①拆下泵蓋。
②利用葉輪上的螺孔拆下葉輪,并將軸上的鍵取下。
③拆下泵體,并將填料壓蓋取下(若密封部分為機械密封時,先將壓緊)單端面密封端蓋的螺母取下,然后再拆下泵體。
④若為機械密封時,拆機械密封部分之前,先取下固定螺釘然后連同單端面密封端蓋一起取下。
⑤拆下連軸器。
⑥拆下托架兩端的軸承端蓋,然后將軸和滾動軸承一起由托架內取出并拆下軸承。
⑦裝配順序與拆卸順序相反進行,只是應注意用紙墊來調整葉輪與泵體和泵蓋之間應保證的軸向間隙
W型旋渦泵起動、停止與運行:
起動、停止
1、對W型分聯式泵.首先應檢査軸承體內是否有鈣基黃油.若存放時間過長.應打幵軸承端蓋檢查一下. 看其是否変質.如發現變質.應重新換油后方可起動。
2、轉動聯軸器(直聯泵可拆下電機風葉5后轉動風葉).證實轉子部件轉動輕松井均勻后.用水平儀檢査機組的水平度.找平后.適當上緊與基礎聯接螺母。
3、測置電動機絕緣強度.若低于5MΩ ,可能是電機受潮或有損傷。若只是受潮.在電機運轉一段時間后可自行驅潮:否則.必須修復或更換電動機.以免不良運轉對泵帶來損傷。
4、試驗起動:點動電動機.調整電機轉向與要求一致。
5、打幵吸入管路閥門.引液到泵體內。對泵安裝位置高于水平位置的.可在吸入管端加裝底閥.關在起動前.向泵殼內灌滿所抽液體(吸入路徑較短的.第一次起動濯水.以后由于泵殼內?余的液體.不需重灌)。
6、打幵壓出管路閥門.起動電機.幵壓力表.調整壓出管路上的閥門.把壓力表讀數調到合適。絕對不可讓泵在關閉閥門或者流置極小的情況下工作。
7、停車時.先關壓力表.停止電動機.然后迅速關閉壓出及吸入管路閥門。
8、短時間停車.如環境溫度低于液體凝固點.要放空液體。長期停車.應將泵溝洗、涂油后妥善保管。
運轉
1、運轉過程中.注意觀察機組運行狀態.尤其是手感電機溫度是否過高.分體式泵還須注意軸承溫度不得超過70℃。對前者.主要解除辦法是檢査管路是否堵塞或閥門示打幵.使泵內壓力過大:后者主要看鈣基黃油是否填加合適.軸承是否損壞或電機與泵不同心。
2、發現故障應立即停止工作并進行檢查。
感謝您訪問我們揚子江泵業的網站www.m.81198.cc,如有任何水泵疑問我們一定會盡心盡力為您提供優質的服務。
- 下一篇:消防泵控制與啟動方式
- 上一篇:CQB防爆磁力泵的磁力材料分析及結構原理圖







